Arenales esquina Av. Callao
Recoleta
USD 744.000
Descripción
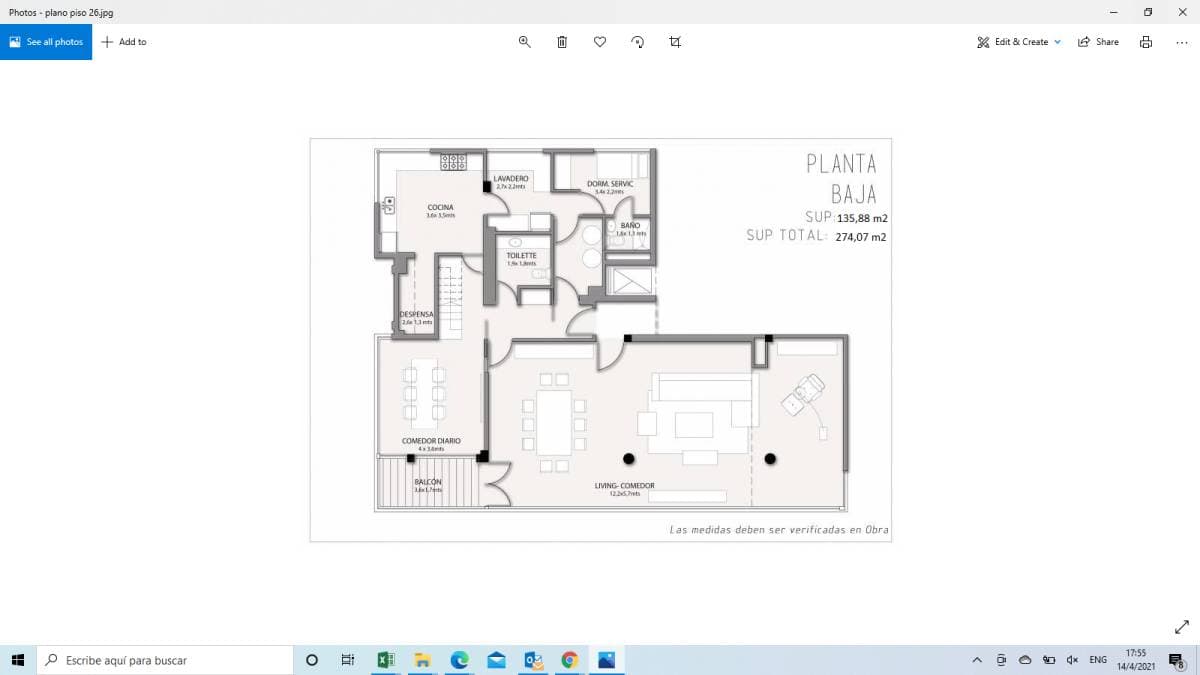
Dúplex en piso alto con vista al río y a la ciudad. En la planta inferior: living-comedor, playroom con salida a balcón, toilette, cocina, lavadero y dependencia de servicio con vista y muy buen baño. En la planta superior: cuatro dormitorios, uno en suite con vestidor y otro baño completo. Uno de los dormitorios tiene salida a otro balcón. Muy luminoso. Dos cocheras fijas. Seguridad 24 horas, portero con vivienda y grupo electrógeno. "Las medidas son aproximadas y orientativas. Las medidas exactas surgirán del título de propiedad." Código: 2733397
- Superficie Total: 263 m2
- Superficie Descubierta: 12 m2
- Superficie Cubierta: 251 m2
- Ambientes: 6
- Dormitorios: 4
- Dormitorios en Suite: 1
- Baños: 2
- Cocheras: 2
- Cobertura Cochera: Cubierta
- Tipo de Cochera: Fija
- Expensas: $ 1125339
- Fecha de la Expensa: 01/02/2026
- Impuesto Municipal: $ 126087
- Agua: $ 91029
- Estado Inmueble: Muy Bueno
- Luminosidad: Muy Luminoso
- Disposición: Frente
- Antigüedad: 70 años
- Tipo Edificio: Torre
- Estado Edificio: Muy bueno
- Cantidad Pisos Edificio: 27
- Deptos / Oficinas por piso: 2
- Cantidad Ascensores: 3
- Balcón
- Cocina
- Dependencia de Servicio
- Dormitorios en Suite
- Escritorio
- Vestidor
- Lavadero
- Living Comedor
- Toilette
- Palier (Semi privado)
- Grupo Electrógeno
- Termotanque (gas)
- Calefacción (losa central)
- Vigilancia (24hs)
Ubicación de la propiedad

Información útil del barrio
recoleta
Recoleta es el barrio más elegante de la ciudad por la calidad de su arquitectura, el carácter aristocrático de sus residencias y palacios, y sus espléndidas plazas. La Iglesia, el Cementerio y el Centro Cultural constituyen un conjunto arquitectónico rico en historia.
- Líneas Mitre, Belgrano y San Martín
- Línea D y H
- 15" Aeroparque | 38" Ezeiza





























